Address
Hurontario Street & Eglinton Avenue West, Mississauga
The Marquee Townhomes is a completed condo-townhouse project by Pinnacle International. The 3-storey residential townhouse development will be home to 100 units. The Marquee is estimated to be completed in 2015 and is located at Hurontario & Eglinton in Mississauga.
[gallery ids="22600,22601,22602,24744,22619,22604"]
Hurontario Street & Eglinton Avenue West, Mississauga
Hurontario Street & Eglinton Avenue West, Mississauga
Pinnacle International is one of Canada’s leading builders of exclusive luxury condominium residences, hotels, and commercial developments. Based in Vancouver, British Columbia, Pinnacle International has been involved in the development, design, construction and management of their projects for over three decades. Pinnacle’s projects have contributed to the development of communities, and enriched these neighbourhoods through complementary architectural expressions.
Model | Bed | Bath | SqFT | Price |
---|---|---|---|---|
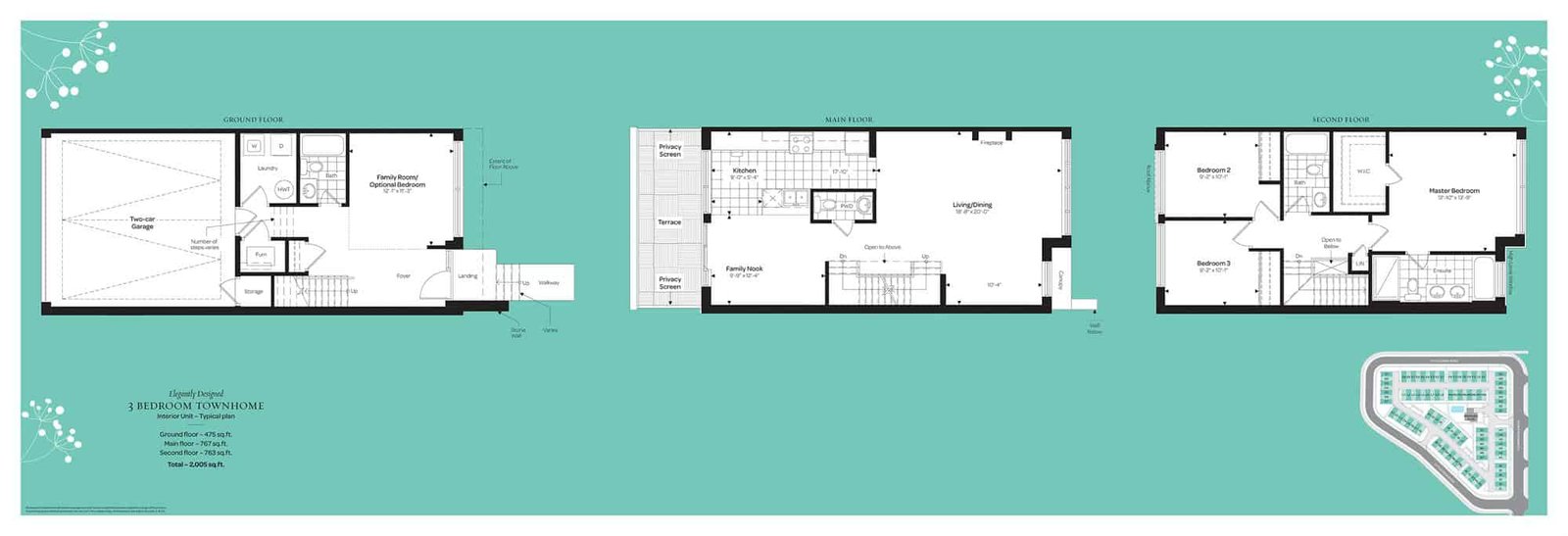
3 BED | 3 | 3.5 | 2005 | - |
Plan | Suite Name | Suite Type | Bath | SqFT | Price | Terrace | Exposure | Availability | |
---|---|---|---|---|---|---|---|---|---|
![]() |
3 BED | 3 | 3.5 | 2005 | - | - | -- | - | Reserve Now |