Address
10 St. Augustine Drive, Whitby
Symphony Bungalows is a new luxury single-family homes development by Delta Rae Homes. Prices estimated to be starting from $1,499,990 and will feature 8 units. Symphony Bungalows is nearby Bus stops and the Selkirk Park, the project is estimated to be completed in 2025 and will be located on 10 Saint Augustine Drive at the Brooklin neighbourhood in Whitby.
Symphony Bungalows by Delta Rae Homes consists of 8 luxury bungalows in the heart of Brooklin, Ontario. The development combines privacy with easy access to Highway 7 and Highway 12, offering a peaceful retreat with proximity to Whitby and the GTA.
Local Amenities:
Transit & Accessibility:
Dining & Entertainment:
10 St. Augustine Drive, Whitby, Ontario L1M 0L7, Canadá
10 St. Augustine Drive, Whitby
Delta Rae Homes is an award-winning builder with over 37 years of experience in creating custom, luxury homes. Known for their exceptional craftsmanship and attention to detail, they specialize in innovative architectural designs and dynamic interiors that make every home a masterpiece. Delta Rae Homes takes pride in offering personalized one-on-one appointments with homeowners, ensuring that each residence is a true reflection of the owner's vision. Symphony Bungalows is a prime example of their commitment to elegance, sophistication, and supreme quality.
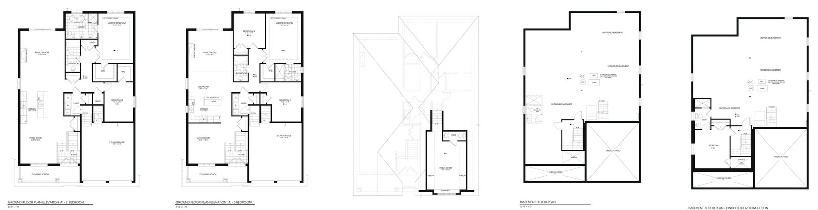
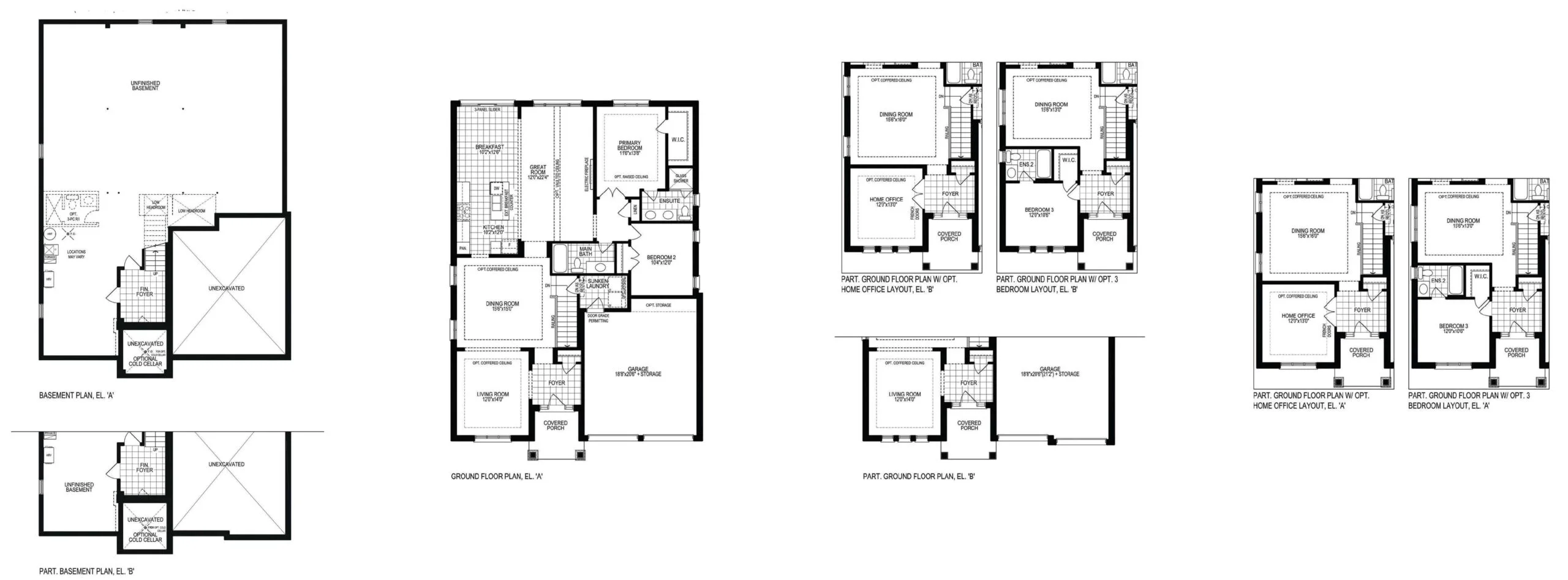
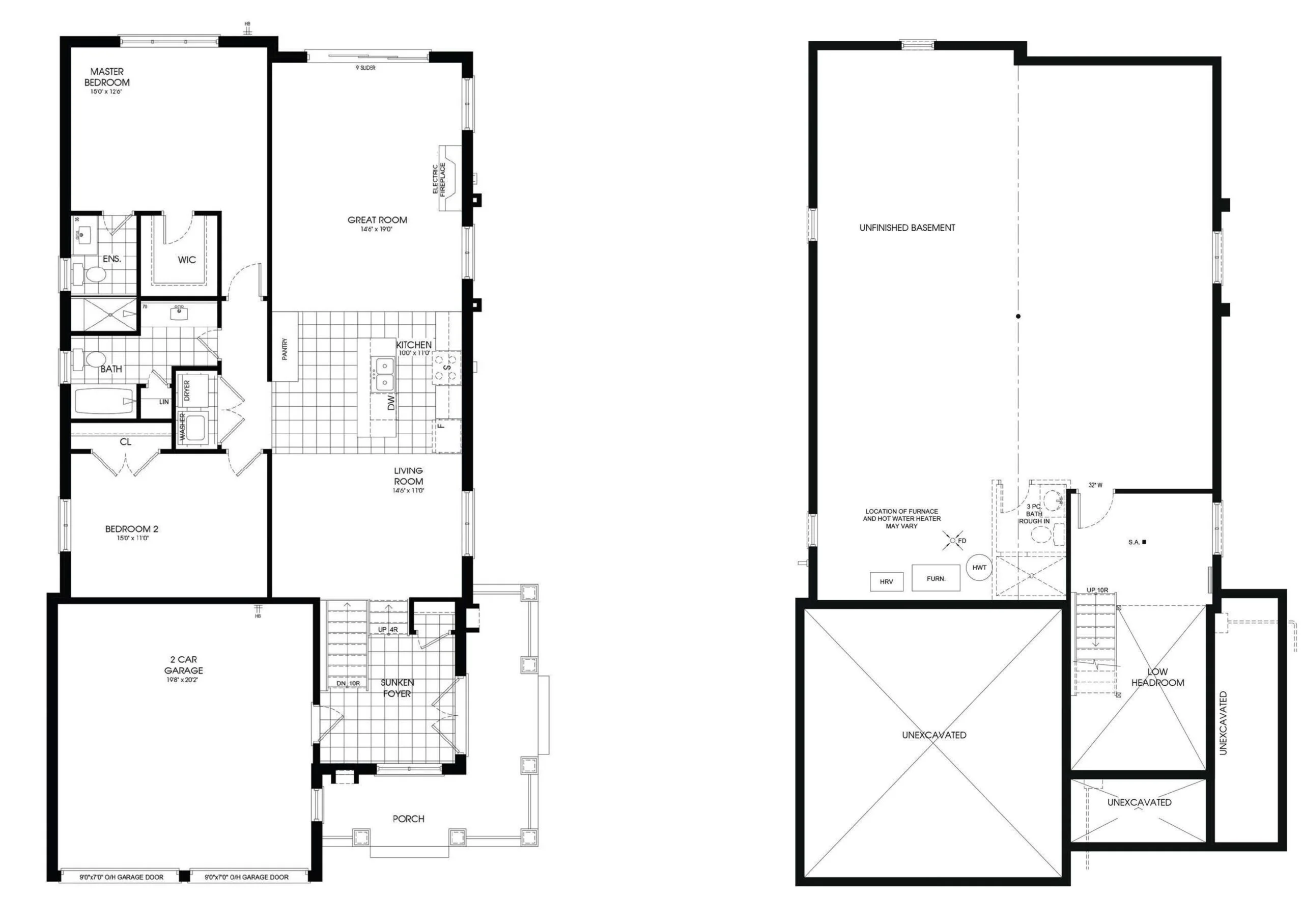
Model | Bed | Bath | SqFT | Price |
---|---|---|---|---|
Mozart A-B | 2 | 2 | - | - |
Amadeus A | 3 | 2 | - | - |
Ludwig Corner | 2 | 2 | - | - |
Ludwig A | 2 | 2 | - | - |
Artaria Loft | 2 | 2 | - | - |
Vivaldi A-B | 2 | 2 | - | - |
Plan | Suite Name | Suite Type | Bath | SqFT | Price | Terrace | Exposure | Availability | |
---|---|---|---|---|---|---|---|---|---|
![]() |
Mozart A-B | 2 | 2 | - | - | - | - | - | Reserve Now |
![]() |
Amadeus A | 3 | 2 | - | - | - | - | - | Reserve Now |
![]() |
Ludwig Corner | 2 | 2 | - | - | - | - | - | Reserve Now |
![]() |
Ludwig A | 2 | 2 | - | - | - | - | - | Reserve Now |
![]() |
Artaria Loft | 2 | 2 | - | - | - | - | - | Reserve Now |
![]() |
Vivaldi A-B | 2 | 2 | - | - | - | - | - | Reserve Now |